The tie beam detail. Download autocad dwg file | CADBULL
Description
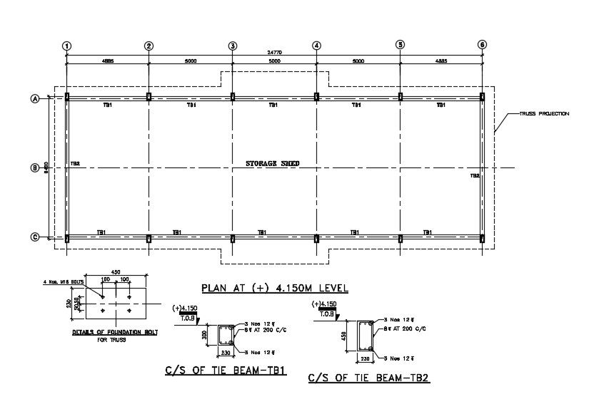
The tie beam detail drawing stated in this AutoCAD file. tie beam detail and foundation detail given in this cad drawing file with dimensions in this AutoCAD drawing file. this can be used by architects and engineers. Download this 2d Autocad drawing file.
Uploaded by:

